Operation Re-creatie: Basisschool De Kleurdoos » Bubble

Ajoutez votre titre ici

 Basisonderwijs – 400 leerlingen
 Moutstraat 24, 1000 Brussel
 Inrichtende macht: GO Scholengroep Brussel

Het doel van Operatie Re-creatie is om speelplaatsen om te vormen tot gemengde en kwaliteitsvolle natuurlijke speel- en ontspanningsruimten en tegelijkertijd een verkoelende groene plek in de wijk te brengen.

De basisschool De Kleurdoos is een van de 20 geselecteerde Brusselse scholen.

Meer over het project Operatie Re-creatie.

Bekijk hieronder vhet verloop van het project van deze scholen.

BS De Kleurdoos (4)
Voortgang van het project
Ontwerp > bestelling van de werken 30%
Operatie Re-creatie_tijdlijn_bubble
Projectplanning

Deze school wordt begeleid door een consortium bestaande uit het architectenbureau AAC Architecture, de studio voor landschapsarchitectuur en stedenbouw Atelier Caneva-s, het design- en ontwikkelingsbureau OSMOS Network en het studie- en adviesbureau ARIES consultants, in opdracht van Leefmilieu Brussel. 

Nieuwsfeed

Oktober 2022: het plan van de toekomstige speelplaats is afgerond!

Maart 2022: Volwassenen rond de tafel

We hebben inderdaad te maken met beperkingen hier, vooral qua ruimte, maar met bijvoorbeeld klimplantjes kun je al heel veel bereiken.

EEN BALANS VINDEN TUSSEN IDEALEN EN REALITEIT

Nadat eerder de kinderen van basisschool De Kleurdoos al hun input hebben gegeven over de herinrichting van de speelplaats, is het nu de beurt aan de volwassenen.  Aan tafel zitten onder andere Lotte, de directrice, Willem van Plant en Houtgoed, Sanne en Ellemie van Zonnebloem,  Lore, coördinatrice van de Brede school en An, zorgmedewerker kleuters.

Weinig ruimte

Nadat ze samen de speelplaats onder de loep hebben genomen, legt Ellemie uit dat het idee van vandaag is om een eerste plan te maken, als voorbereiding voor de architecten. In de discussie komen eerst de uitdagingen voor de herinrichting van de speelplaats aan bod. Een daarvan is de beperkte ruimte.

Lotte, directrice: “Ik ben vooral op zoek naar oppervlakte, de speelplaats is eigenlijk te klein, dus je moet in de hoogte gaan. Ik droom van iets in de hoogte, een toren bijvoorbeeld met een glijbaan. Echt iets herkenbaars zodat we een statement kunnen maken als school.”

En hoewel iedereen graag een zo groen mogelijke speelplaats zou willen, zijn er ook vragen bij wat haalbaar is: “We zouden gras willen, maar ik denk dat dat niet overleeft, dat wordt gewoon vertrapt. We moeten realistisch zijn”. Willem geeft aan dat gras geen must is en dat er andere mogelijkheden zijn voor vergroening zoals het gebruik van klimplantjes.

Brede school

Omdat de school een ‘brede school’ is, geeft Lore aan dat je de school daarom kunt vergelijken met een openbaar park waar heel wat Brusselaars willen komen spelen. Dat betekent dan ook dat de speelplaats zeer intensief wordt gebruikt, zowel tijdens als buiten de schooluren.

Lore: “Dat we een brede school zijn, maakt de inrichting van de speelplaats extra complex. We hebben ‘hufterproef’ materiaal nodig, dat tegen een stootje kan. We hebben al veel dingen uitgeprobeerd, maar het gaat vaak kapot.

Kinderen willen ‘iets met water’

Ellemie deelt vervolgens inspiratiefoto’s uit van andere speelplaatsprojecten. Tijdens een  ‘tour de table’ geeft iedereen aan wat ze graag zouden zien op de speelplaats. Ideeën die worden geopperd zijn onder andere een buitenklasje met een dak voor schaduw, een buitenkeukentje, maar dan wel heel stevig, stenen waar gras doorheen komt, een grote boom waar kinderen onder kunnen zitten, niveauverschillen, …

An, zorgmedewerker bij de kleuters: “ Ik was erbij toen we samen met Sanne en Ellemie de kinderen aan het woord hebben gelaten over wat ze willen. Iets met water staat bovenaan hun verlanglijstje. Gevolgd door een klimfaciliteiten, een dierenhoek en een blotevoetenpad. Ik weet dat de collega’s liever geen waterparcours zien, omdat dat misschien veel geknoei wordt. Maar de kinderen willen dat zo graag, dus ik zet het er toch bij.”

Maart 2022: Op zoek naar ruimte

Wij kleuren graag buiten de lijntjes

EEN BREDE SCHOOL IN HET HART VAN BRUSSEL

Basisschool De Kleurdoos bevindt zich in het hartje van Brussel centrum. Dezelfde site biedt nu ook nog onderdak aan een atheneum maar deze middelbare school zal vanaf volgend jaar op een andere locatie zijn. De school heeft een tweede vestiging in de Vaartstraat in Brussel, die binnen twee à drie jaar ook gevestigd zal worden in de Moutstraat, na de verbouwingen. De school behoort tot de Brede school ‘Buiten de lijntjes’, een van de pioniers van de brede school werkingen in Brussel. Dat betekent dat de school 7 op 7 open is en dat de infrastructuur, speelplaats en klassen ook door heel wat partners worden gebruikt die in de buurt van de school gevestigd zijn.

Dromen maar ook realistisch blijven

Lotte, directrice van de school weet wat ze graag zou zien op de speelplaats. Tegelijkertijd beseft ze ook dat er beperkingen zijn. “Veel van de kinderen die naar onze school komen wonen klein en zijn niet gewoon om vrij buiten te kunnen spelen. Die willen graag iets ‘wows’ en ik wil ze dat ook gunnen, maar ik wil liefst niet iedere week naar het ziekenhuis moeten bellen.”

Ook de beperkte ruimte en het feit dat de school deel is van een brede school zorgt voor een extra uitdaging:We wensen speelplekken die we kunnen onderhouden, die geschikt zijn voor het gebruik als een “openbare” ruimte, met nog genoeg beweegruimte voor de toch wel meer dan 500 leerlingen die hier dagelijks zijn. Want we zijn immers een brede school. We dromen dus maar beseffen dat we ook realistisch moeten blijven.”

Warmste school van 1000 Brussel

De school heeft zelf al enkele groene projecten opgezet. “Daar leren onze leerlingen veel van. Ze ontdekken hoe ze beter zorg kunnen dragen voor onze natuur. Het lijkt vanzelfsprekend maar voor onze ketjes, die vaak  in appartementen met weinig vrije ruimte leven is dit niet zo.  Bovendien zorgt het ook voor betrokkenheid van onze ouders en de buurt. We willen ook buiten schooluren voor kinderen en hun ouders een plek bieden voor ontspanning. Een gezellige brunch met de buurt aan een lange tafel, fietsende kinderen, voor dieren zorgen, … In alles wat we doen streven we ernaar om van de Kleurdoos de ‘warmste’ school te maken van 1000 Brussel.”

Ook aan andere leuke ideeën ontbreekt het de directrice niet: “Ik zou graag een muziekinstallatie integreren en iedereen aan het dansen krijgen. En dan spelen we aan het einde van de dag het liedje van Urbanus: ge moogt naar huis gaan.”

Werkdocumenten

Diangostic Technique
Technische diagnose
Plan élèves
Plan van de leerlingen
Plan adultes
Plan van de volwassenen
Samenvatting van de wensen
Samenvatting van de wensen
zones
Voorgestelde zones
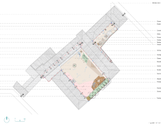
Programmatie
Programmatieplan

Fotogalerij

Diagnose van de speelplaats 

Workshop rond de ideale speelplaats

De huidige speelplaats

Artikel geschreven door Bee-Com Dies – Wilma Schippers.   ©Foto’s: Bénédicte Maindiaux.

Deze site is geregistreerd op wpml.org als een ontwikkelsite. Schakel over naar een productiesite met de sleutel op remove this banner.